ARKKITEHTISUUNNITTELU PETRI KARVINEN

Suojaisa sisäänkäyntipatio, valoisat oleskelutilat






pientalon suojaisa sisäänkäynti, Veikkola | arkkitehti petri karvinen
Talon sisäänkäynti on suojaisalta patiolta, jolle käydään talon ja autokatoksen välistä. Olohuoneen edustalla on vesiallas, joka heijastaa auringonvaloa sisätiloihin ja kerää myös sadevesiä.
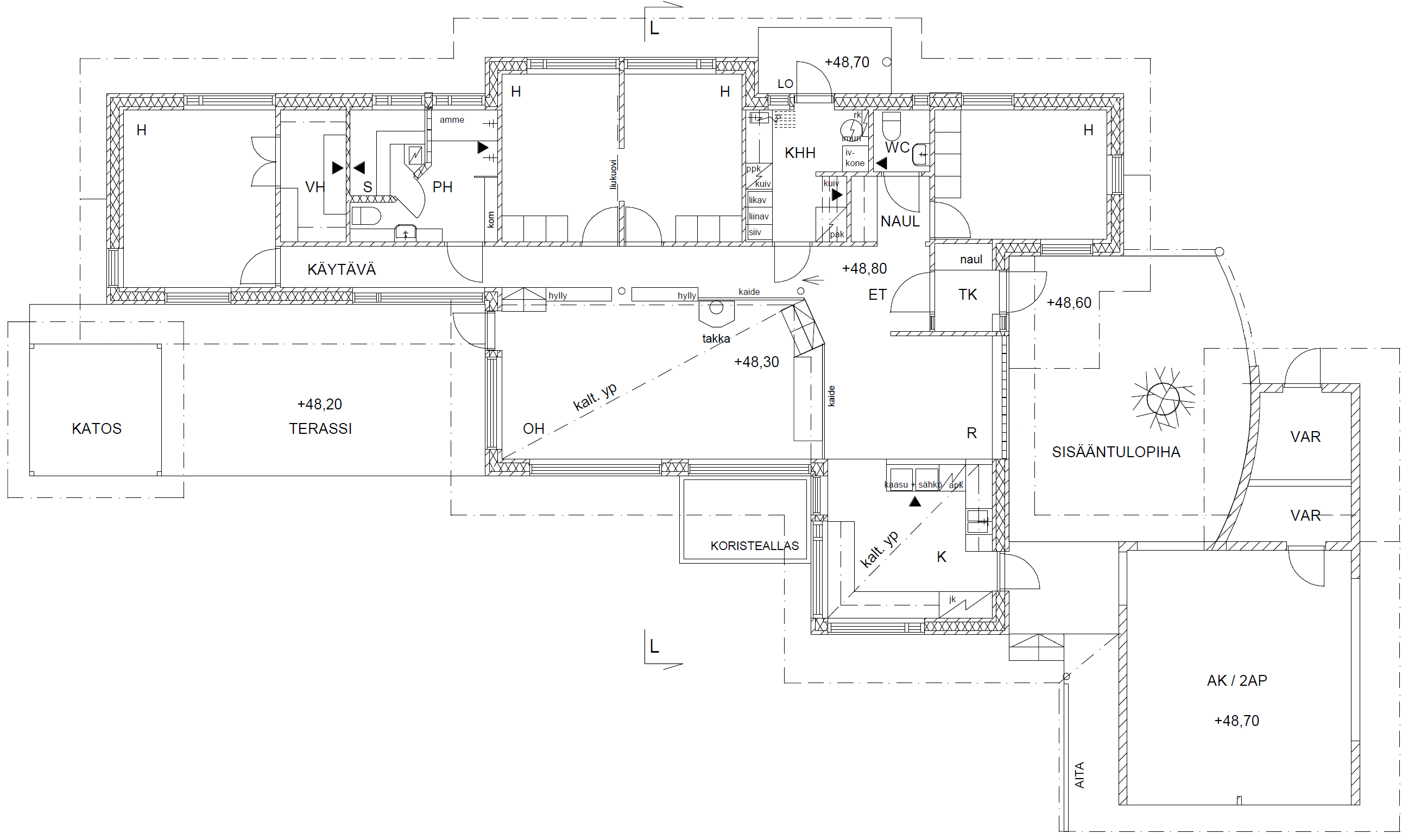
pohjapiirros, toimiva omakotitalo | arkkitehti petri karvinen

Autokatoksesta on sujuva yhteys suoraan keittiöön. Talo kääntää pitkän selkänsä pohjoiseen ja samalla ylempänä sijaitsevan maantien suuntaan suojaten oleskelupihaa. Keskimmäiset lastenhuoneet on erotettu liukuovella ja voidaan näin helposti yhdistää suuremmaksi tilaksi. Talon läpäisevän käytävän avoimmuutta voidaan säädellä esimerkiksi kalusteilla. Keittiö haluttiin hieman sivuun oleskelutiloista - ruokailutila liittyy puolestaan avoimemmin olohuoneeseen. Keskeisesti sijaitsevan olohuoneen sisäkattoa on korotettu ja lattiaa on laskettu hieman alemmas - lähemmäs terassia ja maan pintaa.
pientalon suojaisa patio, Veikkola | arkkitehti petri karvinen
valoisa olohuone, takana ruokailutila | arkkitehtisuunnittelu petri karvinen
ruokailutila, keittiö, heijastava allas | arkkitehti petri karvinen






huoneistoala 149 m2 - kerrosala 167 m2
harkkorakenne





ARKKITEHTI PETRI KARVINEN  
PETÄJÄNOTKO 17 02540 KYLMÄLÄ (KIRKKONUMMI)
puh : 050 357 1692

info at petrikarvinen.net

www.petrikarvinen.net

Petri Karvinen © 2024.

.